Projet de rénovation : La ligne juste

Transformation d’un appartement parisien de 64 m² en cabinet d’avocats alliant sobriété, élégance et fonctionnalité.
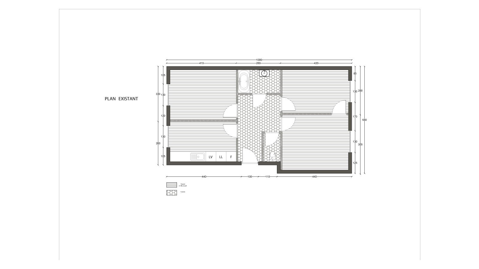
Le défi : apporter de la lumière naturelle à la salle d’attente, initialement sombre, tout en créant trois bureaux indépendants, des sanitaires et une circulation fluide.
La solution : une verrière relie la salle d’attente à la kitchenette, diffusant la lumière jusqu’au cœur du lieu.
Un miroir horizontal prolonge cet effet, tandis qu’un mur végétal encadré de LED insuffle une touche vivante et contemporaine.
Le projet retenu adopte une esthétique minérale et végétale : béton ciré, enduits, bois clair et lumière maîtrisée.
Les bureaux, identiques dans leur composition, associent mobilier minimaliste et matériaux nobles, offrant un cadre propice à la concentration et à l’échange.
Une rénovation sobre et inspirée, où la lumière devient symbole d’ouverture et de clarté d’esprit.